Skip to content

Erikslund Norra B, lokal 13 & 26 - 113,2 m²

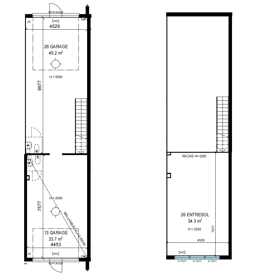
Hyreslokal 113,2 m² – Västerås, Erikslund Modern och flexibel hyreslokal med 5 m takhöjd och ca 4 m hög port. Passar utmärkt för lager, verkstad eller verksamhet. Lokalen består av två enheter (33,7 m² + 79,5 m²) som tillsammans ger 113,2 m². Ledig omgående. Belägen i attraktivt företagsområde med god tillgänglighet.

Storlek:
113,2 m²
Adress:
Hallsta Gårdsgata 28, Erikslund, Västerås
Tillträde:
Omgående

Visning:

16/04.
Tid: 16.00 - 17.00

eriklund-norra-draglin-lokal-1326-13

Hyreslokaler där din dröm kan bli verklighet

Är du företagare och saknar en lokal med bra läge? Drömmer du om en egen plats för din bilhobby? En plats där du kan restaurera möbler eller arbeta med händerna? De innovativa Talli-lokalerna är avsedda för alla. I Finland har begreppet Talli, eller Talliosake som vi heter där, blivit synonymt med våra flexibla och mångsidiga lokaler för småföretag och hobbys. Vi var pionjärer och är idag marknadsledare med ca 5000 lokaler i drygt 70 anläggningar på ca 35 orter.

Läs mer om projektet
eriklund-norra-draglin-lokal-1326-01

Lokalfakta

Lokaler 13 +26, 113,2 m² 

Lokalens mått (ca, m)

9,97 + 7,57 (Längd)
4,52 (Bredd)
5,00 (Höjd)

Standardutrustning

  • WC
  • Varmvatten
  • Fjärrstyrd garageport med separat gångdörr
  • Kameraövervakning med inspelning
  • Belyst och asfalterad gård
  • Betongplatta med epoxiytskikt
  • El: 3-fasuttag
  • Mekanisk frånluftsventilation
  • Lysrörsbelysning
  • Golvbrunn med olje- och sandavskiljare
  • Fullvärdesförsäkring för fastigheten
  • Färdigt avtal för fastighetsförvaltning och fastighetsskötsel
  • Anslutning för installation av toalett
Skip to navigation